108 Jim Parker RoadWesley Chapel, NC 28110




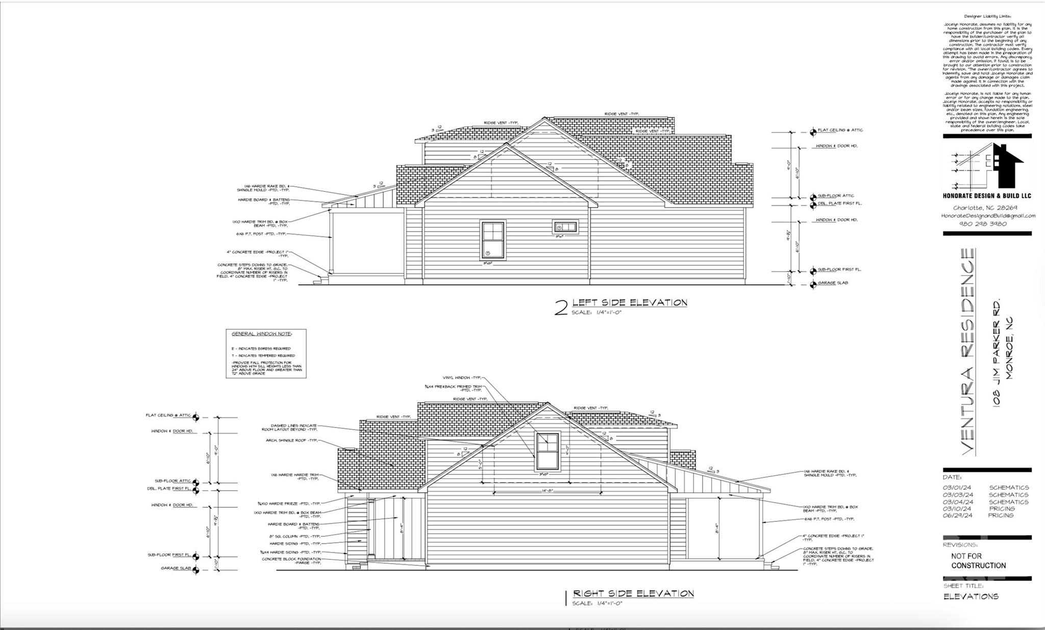
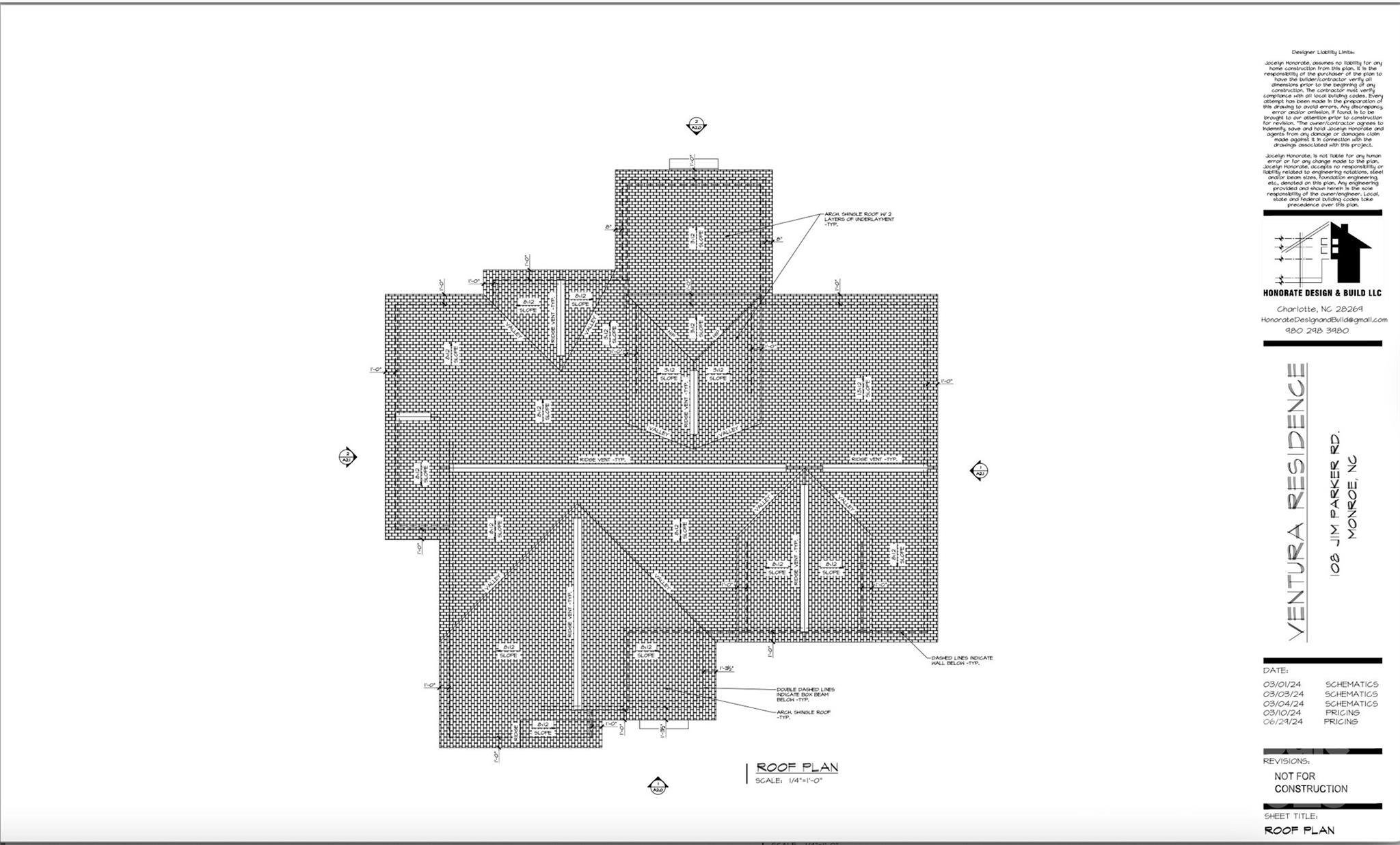
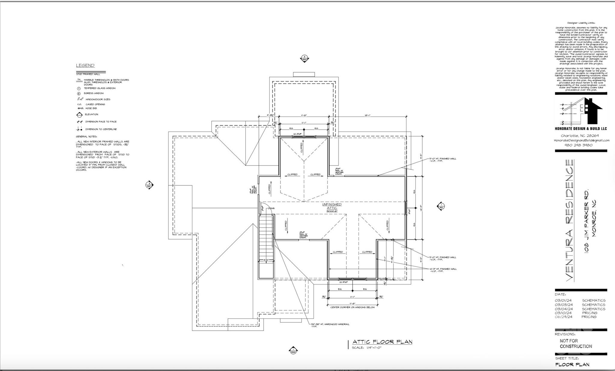
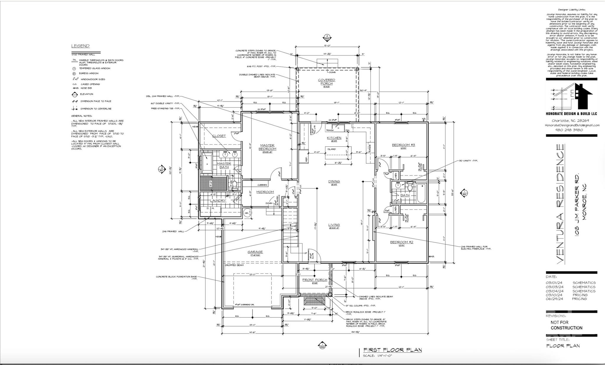
Finish your vision in the heart of Wesley Chapel. This partially completed home sits in the Weddington School District (Wesley Chapel Elementary) and comes with no HOA to limit your plans! Thoughtfully designed and double-wrapped for UV protection, the project lays a strong foundation for a stunning finish. When complete, the plan can offer up to ~2,383 heated square feet with three bedrooms, three full bathrooms, and an expansive bonus room spanning the entire second floor, ideal as a family retreat, studio, or entertainment haven. The main level already features two roughed-in full baths; the upstairs is prepped with plumbing for a third. Andersen 100 windows promise energy efficiency and natural light. Infrastructure is underway: a solid-filled block crawl space has been installed, a well is in place, and septic tanks are on site, with a permit issued. This provides a significant head start for your final vision. Important note: This property is currently under construction. We welcome showings by appointment through Showing Time. Please use caution while touring, as the home is an active work site. The seller and builder assume no liability for anyone on the property. Buyer guidance: Since the home is unfinished, renovation/construction financing may be required. Buyers should verify loan options, inspections, and permitting to suit their intended completion and use. Whether you’re a builder, investor, or a buyer ready to finish a custom home to your exact taste, this is where craftsmanship meets possibility, and your imagination completes the story. Buyers, ask your REALTOR® to retrieve the parcel map from the documents section; the MLS tax map is not current.
3 days ago | Listing first seen on site | |
3 days ago | Listing updated with changes from the MLS® |

Listings courtesy of Canopy MLS as distributed by MLS GRID
Some IDX listings have been excluded from this website. The data relating to real estate on this website derive in part from the Internet Data Exchange program. Brokers make an effort to deliver accurate information, but buyers should independently verify any information on which they will rely on a transaction. All properties are subject to prior sale, change or withdrawal. Neither the publisher of this website nor any listing broker shall be responsible for any typographical errors, misinformation, or misprints, and they shall be held totally harmless from any damages arising from reliance upon this data. This data is provided exclusively for consumers’ personal, non-commercial use and may not be used for any purpose other than to identify prospective properties they may be interested in purchasing. Based on information submitted to the MLS GRID as of 2025-10-14 01:03 AM UTC. All data is obtained from various sources and may not have been verified by broker or MLS GRID. Supplied Open House Information is subject to change without notice. All information should be independently reviewed and verified for accuracy. Properties may or may not be listed by the office/agent presenting the information. ©2025 Canopy MLS.
The Digital Millennium Copyright Act of 1998, 17 U.S.C. § 512 (the “DMCA”) provides recourse for copyright owners who believe that material appearing on the Internet infringes their rights under U.S. copyright law. If you believe in good faith that any content or material made available in connection with our website or services infringes your copyright, you (or your agent) may send us a notice requesting that the content or material be removed, or access to it blocked. Notices must be sent in writing by email to [email protected]. “The DMCA requires that your notice of alleged copyright infringement include the following information: (1) description of the copyrighted work that is the subject of claimed infringement; (2) description of the alleged infringing content and information sufficient to permit us to locate the content; (3) contact information for you, including your address, telephone number and email address; (4) a statement by you that you have a good faith belief that the content in the manner complained of is not authorized by the copyright owner, or its agent, or by the operation of any law; (5) a statement by you, signed under penalty of perjury, that the information in the notification is accurate and that you have the authority to enforce the copyrights that are claimed to be infringed; and (6) a physical or electronic signature of the copyright owner or a person authorized to act on the copyright owner’s behalf. Failure to include all of the above information may result in the delay of the processing of your complaint.
Last checked - 2025-10-14 01:03 AM UTC
Did you know? You can invite friends and family to your search. They can join your search, rate and discuss listings with you.